Buen estado
Descripción
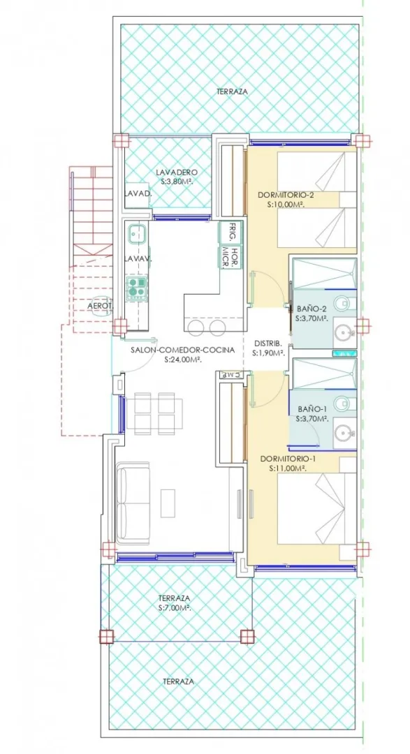
Bonito bungalow en planta baja de 2 dormitorios y 2 baños con vistas a sus amplias zonas verdes. De diseño moderno y terminaciones con materiales de primera calidad, la elegancia y el minimalismo forman parte del hogar. Luminoso salón comedor, cocina americana con barra, 2 baños (uno de ellos en suite), 2 terrazas con vistas a la piscina y zonas verdes. Dispone de armarios empotrados, puerta de seguridad, ventanas de doble acristalamiento y con opción a garaje con trastero.
Situado en una zona tranquila, al lado de Torrevieja junto a las salinas y también al mar Mediterráneo. Impresionante paisaje de lagunas y salinas de Torrevieja. Cerca de todos los servicios de primera necesidad como supermercados, farmacias, centros de salud o el Hospital General de Torrevieja, así como a todas las zonas de ocio que puedas imaginar: parques acuáticos, campos de golf, mini golf, centros comerciales, restaurantes, pubs, cines, boleras, el puerto deportivo Marina Salinas, etc.
La urbanización está situada a tan solo 10 minutos en coche de las playas abanderadas donde muy buenos momentos te esperan bajo el sol… y desde donde se pueden disfrutar unas vistas inigualables al paraje natural.
¿Quieres vender tu vivienda en esta zona? ¿No puedes desplazarte? ¿Estás en otra ciudad o país? Podemos ayudarte con toda la gestión de la venta a distancia, para más información, no dudes en contactarnos en nuestra web o por teléfono 965715359
• SERVICIOS
- Búsqueda y asesoramiento inmobiliario para encontrar la mejor vivienda para usted.
- Si usted viene del extranjero, búsqueda de hospedaje durante su estadía en hoteles de la zona.
- Viviendas en exclusiva, un único intermediario y directamente del particular, revisado para garantizar su venta correctamente.
- Asesoramiento legal y fiscal gratuito. Incluye la obtención de NIE, residencia fiscal, permiso de residencia, seguro sanitario, búsqueda de colegios para los niños, certificados energéticos, etc…
- Nos encargamos de todos los trámites necesarios para los cambios en el registro de la propiedad, agua, luz, comunidad y contribución.
- Servicios de posventa al momento en nuestras oficinas, teléfonos, correos electrónicos o whatsapp.
Datos de vivienda
| Referencia |
OB-AMBV-2b |
| Precio |
275.000 € |
| Dormitorios |
2 |
| Baños |
2 |
| Barrio |
Los Balcones |
| Estado |
Obra Nueva |
| Tipo |
Bungalow |
| Área total |
62.00 M² |
| Zona |
Todas |
| Población |
Torrevieja |
| Orientación |
Este |
| Calificación energética |
 |
Características
Terraza
Aparcamiento
Piscina comunitaria
Preinstalación de aire acondicionado
Calefacción central
Armario empotrado
Cocina independiente
Puerta blindada
Contacto